喜报丨成功签下省内最大医养结合养老项目

2019-01-07

                          特大喜报

      历经三个月方案PK,徕恩设计以运营设计思路获得客户认可一举拿下东莞养老院项目,该项目将打造为省内最大医养结合养老城,以设计为主导的崭新养老体验和业主精心设计的运营模式服务于未来的养老市场。


项目地点:东莞
项目规模:357亩
项目规划:养老院、医院、酒店、国际学校(幼儿园、小学、中学、高中)




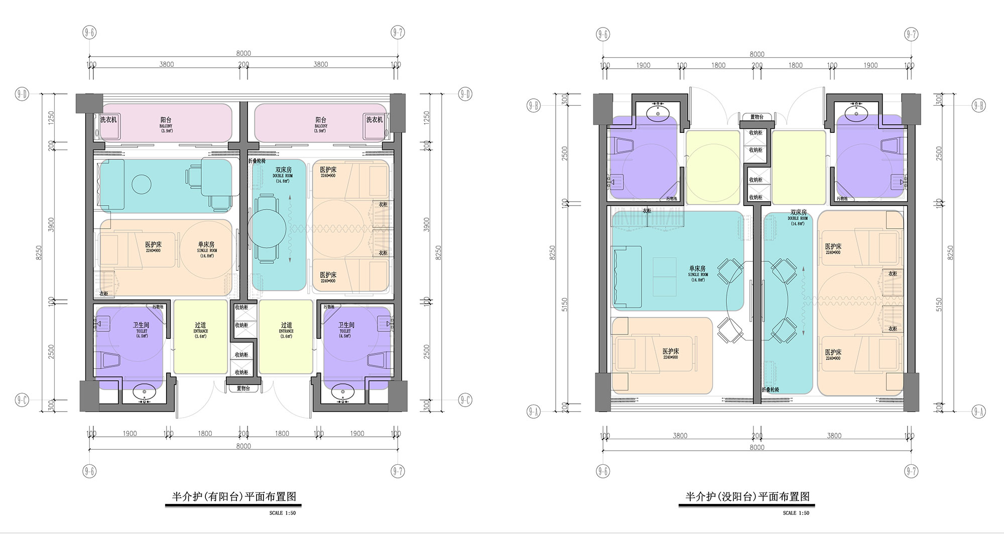
                    一、设计理念-优家养老



营销理念: “优家” 服务关键点之设计优


居住用房: 针对老年人的特殊设计

a: 考虑轮椅流线及空间

b: 设置无障碍卫生间

c: 设置坐式更衣换鞋

d: 插座、开关都相应地降低高度

e: 采用明亮的颜色,增强环境的可识别性

f: 地面防滑处理,墙壁预埋扶手,阳角抹圆


楼公共区域

a: 公共部位满足无障碍设计要求

b: 设置担架梯

C: 底层设置接待台


护理单元

a: 每层设护士站

b: 每层设置公共活动厅


组团

a: 楼栋间设置风雨连廊

b: 设置适老配套设施


营销理念: “优家” 服务关键点之服务优


机构养老服务

a: 老年护理院

b: 养老公寓

C: 老年服务中心

d: 老年健康管理中心

e: 老年户外活动场地

f: 老年大学

g: 老年活动中心


社区居家养老服务:

a: 生活能自理

b: 生活不能自理

c: 社区日间照料(托老所)

d: 助餐服务



               二、我们对养老平面的理解与展现


公司从2013年第一个养老项目设计到如今已设计超过五千多床养老床位,对适老空间的设计有深刻体会及理解,我们的设计从全面分析各类老年人一天的活动内容及时间规律开始, 关注老年人的生理、心理、行为及自理程度,分析老年人的特征和需求,着力打造环境优、服务优、设计、优配套优的" 四优" 养老中心,给予老人家的温暖、优于家的配套。同时,从运营角度帮客户市场分析、战略定位、投资回报、服务培训,协助客户打造具有竞争力和特色的养老机构。